Boiler Stoveman 120L
Click Image for Gallery
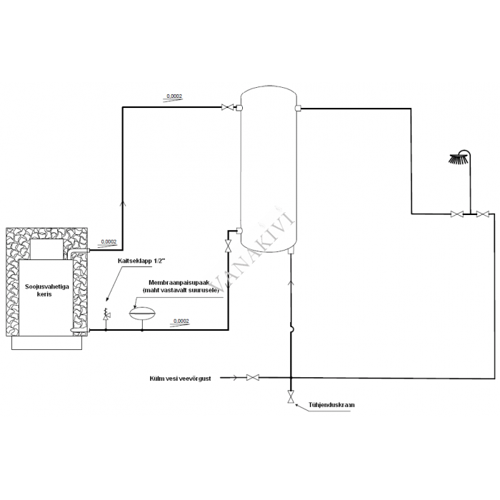
Stoveman BOILER on mõeldud eelkõige sauna tarbevee soojendamiseks saunaahju soojusvaheti kaudu. Boiler on arvestatud trassi veesurvele kuni 4 bari. Boileri korpus on valmistatud 3 mm lehtterasest. Boiler on varustatud nelja ¾ tollise tingläbimõõduga sisekeermega ühendusnipliga. Boileri eelistatud asend on horisontaalne, kuid boilerit on võimalik paigaldada ka vertikaalselt.















































